新聞動態
長沙家裝效果圖28平老房 把床抬高 空間擴容一倍
時間:2020-01-17 13:04 瀏覽次數:尋意空間今天分享的是一套建筑面積28平米的小戶型老房改造案例,房子位于長沙,也是一樓的小戶型,有個小院子,設計師為了整個家能夠寬敞一些,選擇了把床抬高的設計,合理的利用了3.6米的層高,讓人羨慕不已。

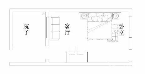
平面布置圖

入戶玄關和院子連通起來,設計師選擇用玻璃隔斷代替墻體,可以讓這個空間看起來更不會擁擠,在這里擺放上綠植,也顯得更加舒適。

這個小庭院被設計師裝上了玻璃吊頂,然后作為餐廳來使用,平時和朋友在這里聚餐也不錯,電視被放在了餐廳的邊上,還搭配了長隔板作為收納。

走過庭院就到了客廳空間,簡單的淺灰色布藝沙發搭配上簡潔的茶幾和地毯,沙發背景墻選擇了大面積留空的設計,讓整個家看起來更加簡約大方。

在客廳的另一側是選擇了刷成淺灰色的設計,搭配上置物架、衣柜和綠植,可以說是把整個空間的收納和裝飾放在了一起。

廚房這個空間位于臥室的下方,而且還做了下沉式的設計,這樣臥室就不會讓人覺得太矮。L形的櫥柜布局方案,滿足了屋主的收納需求,也不會顯得太擠。

二樓抬高的這部分其實比較窄一些,所以設計師也只是做了部分抬高的地臺搭配一張床墊,床頭柜用小推車代替,顯得更為靈活。

臥室上方的假梁吊頂一直延伸到了客廳處,讓整體感變得更強。屋主購買了一個遮光窗簾放在臥室的床尾,可以起到保證隱私的效果,也不會早上被曬醒。

衛生間實在客廳和廚房的邊上,整體是一個長條形的格局,洗手臺和馬桶上方做了大面積的浴室鏡,讓整個衛生間的空間視覺感得以延伸。

而淋浴區是被放在了衛生間的里面,用玻璃門作為隔斷。整個衛生間的配色以白色為主,搭配灰色的地磚,看起來更加簡潔大方。


